Jellis Craig

1215 High Street, ARMADALE, VIC 3143

Jellis Craig

1215 High Street, ARMADALE, VIC 3143

Current Listings

The team at Jellis Craig currently has 26 properties for rent

Set Property Filters

Min
Max
Min
Max
Min
Max
Min
Max
Min
Max
$
to
$
Early Bird
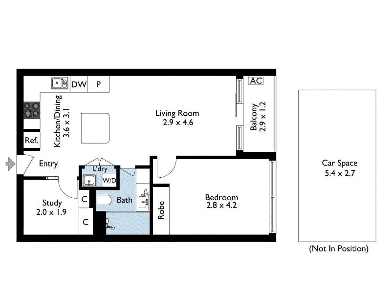
2/24 Blenheim St, Balaclava
2
1
1
Apartment

Move in: 5/01/26

BD+ Inspected
ES+ Applied
IO+ Page Views
Early Bird
$1,600pw
8B Yorkshire St, Richmond
4
3
1
House

Move in: 16/01/26

BD+ Inspected
ES+ Applied
IO+ Page Views
Early Bird
8/15 McKinley Avenue, Malvern
2
1
1
Apartment

Move in: 9/02/26

BD+ Inspected
ES+ Applied
IO+ Page Views
Early Bird
$1,500pw
201/91 Alexandra Avenue, South Yarra
2
2
2
Apartment

Move in: 9/01/26

BD+ Inspected
ES+ Applied
IO+ Page Views
Early Bird
$3,000pw
301/589 Toorak Road, Toorak
3
3
4
Apartment

Move in: 9/01/26

BD+ Inspected
ES+ Applied
IO+ Page Views
Early Bird
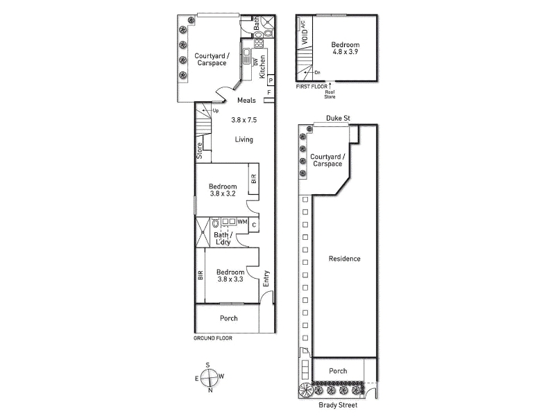
1 Crimea St, Burnley
2
1
1
House

Move in: Now

BD+ Inspected
ES+ Applied
IO+ Page Views